Каталог товаров

Клапан дымоудаления ДМУ-МС с реверсивым приводом многостворчатый

Клапан дымоудаления ДМУ МС используется в качестве клапана дымоудаления с нормально закрытой заслонкой.
Клапан дымоудаления предназначен для открывания проемов вытяжных систем аварийной противодымной вентиляции. Клапан устанавливается в проемах стен, перекрытий, подвесных потолков, а также в торце воздуховодов.
СДЕЛАНО В РОВЕН
Описание товара
Характеристики моделей
Купить
Руководства
Видео

Клапан ДМУ МС используется в качестве клапана дымоудаления с нормально закрытыми заслонками.
Клапан предназначен для открывания проемов вытяжных систем аварийной противодымной вентиляции.
Применение клапана осуществляется в соответствии с требованиями СП 60.13330.2012, CП 7.13130.2013, ГОСТ Р 53301-2013 и действующими территориальными строительными нормами.
Вид климатического исполнения и категория размещения - УЗ по ГОСТ 15150-69.
Клапан не подлежит установке в помещениях категорий А и Б по взрывопожароопасности, в системах вентиляции и местах отсоса взрывопожароопасных и агрессивных сред, а также в системах, не подвергающихся очистке от горючих отложений.
Пределы огнестойкости клапана ДМУ МС – E90.
Режим работы клапана ДМУ МС – нормально закрытый (НЗ).
Клапаны ДМУ МС изготавливаются из оцинкованной стали, стенового типа с внутренним расположением привода.

Способы управления заслонкой клапана ДМУ МС:

Тип привода

Принцип срабатывания привода

Механизм перевода заслонки

Способ перевода заслонки

В рабочее положение

В исходное положение

Из рабочего положения в исходное (многократное использование)

Из исходного положения в рабочее

Р

Подача напряжения на соответствующие клеммы питания привода

электропривод

электропривод

дистанционный с пульта управления

автоматический, по сигналам пожарной автоматики;

дистанционный с пульта управления;

от кнопки/тумблера в месте установки клапана

вручную

вручную

Примечание:

Электропривод устанавливается только по высоте клапана (H). 

Файлы
Клапаны дымоудаления типа ДМУ МС.pdf

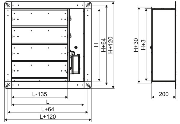
Габаритные и присоединительные размеры (мм) 

ДМУ МС чертеж.jpg

Типоразмерный ряд и значение площади живого сечения клапанов ДМУ МС стенового исполнения, м2

ДМУ МС типоразмерный ряд и живое сечение.jpg

Примечание: Клапаны, размеры которых превышают указанные в таблице, конструируются индивидуально.

Характеристики приводов клапанов ДМУ МС

Характеристика

RLE10-220S

RLE10-24S

Время поворота, с, не более

30

30

Крутящий момент, Нм

10

10

Напряжение электропитания привода, В

220

24

Потребляемая мощность, Вт

во время вращения

4,0

4,0

в состоянии покоя

3,0

3,0

Рабочая температура, °С

-30...+50

-30...+50

Степень защиты

IP54

IP54

Вес, кг

1,9

1,8


* Полная информация по электроприводам РОВЕН в разделе «Электропривод РОВЕН».

Электрические схемы подключения клапанов ДМУ МС

ДМУ МС реверс элсхемы.jpg

ДМУ-МС реверс_маркировка.jpg

Не представленные в наличии модели доступны к поставке под заказ

Оповестить о поступлении

Спасибо за обращение!
Наш менеджер свяжется с вами.
Руководство по эксплуатации ДМУ МС.pdf

Всю необходимую информацию также можно получить по телефону «горячей линии»

+ 7 800 200 93 96

или по телефону

+7 800 505 08 67 получить консультацию